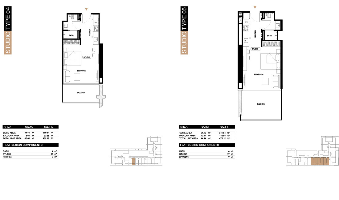
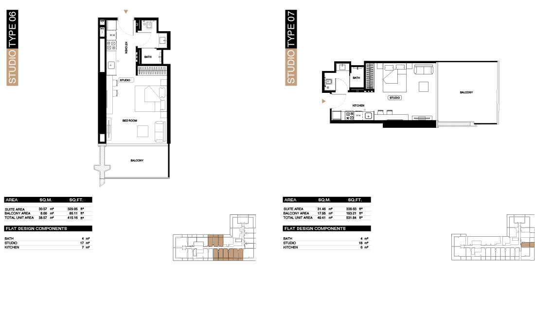
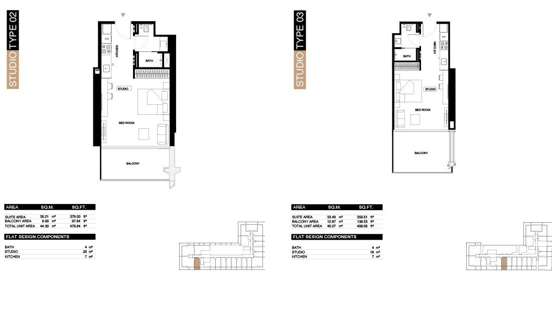
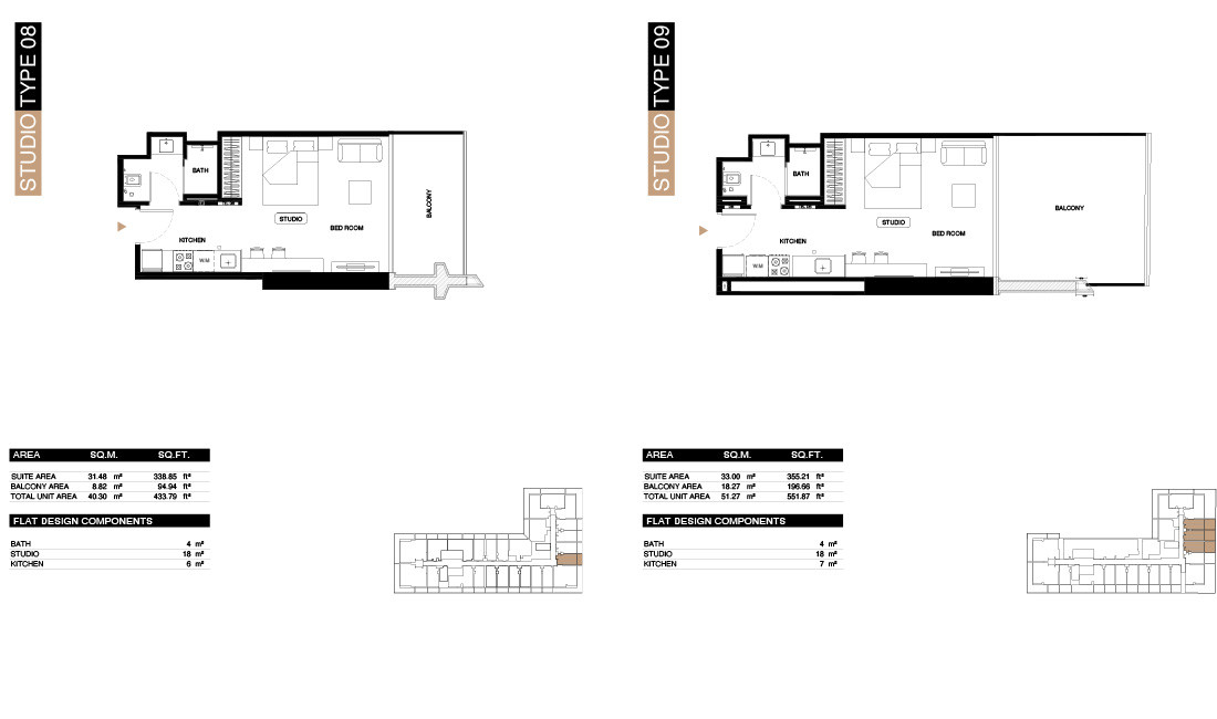
Exclusive Layouts

Floor Plans

Studio
Studio 1/4