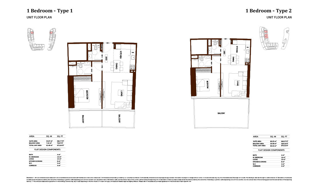
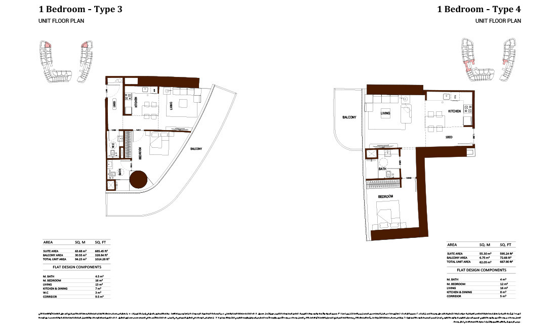
Exclusive Layouts

Floor Plans

1 Bedroom
1 Bedroom 1/5